Diese vermietete Doppelhaushälfte in Weyhe/Lahausen bietet eine attraktive Gelegenheit für alle, die in eine solide Wohnimmobilie mit Entwicklungspotenzial investieren möchten.
Mit ca. 102 m² Wohnfläche auf einem großzügigen Grundstück von ca. 364 m² überzeugt das Haus durch seine klassische Aufteilung, gut nutzbare Räume und einen angenehmen Gartenbereich mit Terrasse.
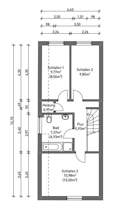
Im Erdgeschoss empfängt Sie ein zentraler Flur, von dem aus alle Räume dieser Ebene erreichbar sind. Hier befinden sich ein Gäste-WC, eine separate Küche sowie der helle Wohnbereich mit direktem Zugang auf die Terrasse und in den Garten. Der Wohn- und Außenbereich schaffen zusammen eine wohnliche Atmosphäre und bieten den Bewohnern eine schöne Erweiterung des Lebensraums ins Freie. Das Obergeschoss verfügt über drei gut geschnittene Schlafzimmer, die vielseitig nutzbar sind, sowie ein Tageslicht-Vollbad. Ein besonderes Highlight ist der ausbaufähige Dachboden, der zusätzliches Potenzial bietet.
Der Garten mit Terrasse und Schuppen unterstreicht den wohnlichen Charakter des Hauses und erweitert die Nutzungsmöglichkeiten im Außenbereich.
Abgerundet wird das Angebot durch eine Garage, den Platz davor für ein weiteres Fahrzeug sowie einen zusätzlichen Außenstellplatz.
Die Immobilie ist seit dem 01.05.2004 vermietet. Die derzeitige monatliche Kaltmiete beträgt 800€.











